中煤榆林能源总经理李自雄:基于数字孪生的煤层自适应开采截割路径规划系统研发与应用
摘要:综采工作面煤层变化决定采煤机的截割规划路径,工作面倾向方向煤层起伏变化时,采煤机需及时调整上下滚筒高度,修正截割采高;工作面走向方向倾角变化时,需修正工作面底板的挖底量,以适应变化的工作面煤层倾角。对于复杂多变的煤层工作面,路径规划时尽可能减少采煤机割顶底板的情况发生,通过提前规划采煤机截割路径,减少滚筒截齿磨损,提高煤炭生产效率。在此应用环境下,研发了基于数字孪生的煤层自适应开采截割路径规划系统,并在中煤陕西榆林能源化工有限公司大海则煤矿(简称大海则煤矿)得到应用验证。
01、煤层自适应开采截割路径规划方案
目前,国内外针对采煤机与刮板输送机姿态研究聚焦在理想的水平工作面上,未思考复杂工作面工况下底板不平整的井下实际情况;对刮板输送机的研究忽略了地形条件影响,主要聚焦在对单采煤机的姿态和位置研究,缺少采煤机和刮板输送机有效协同监测的针对性研究;路径规划截割主要针对刮板输送机水平面形态的调直,未监测刮板输送机三维空间形态,不能准确指导采煤机滚筒截割路径。
基于此,构建综合透明工作面地质分布和采运设备运行状态的综采工作面煤层路径截割规划方法。采用钻探、物探、槽波地震勘探、随采地质勘探等技术获取煤层地质数据,构建工作面三维煤层透明地质模型,采集各煤层区域地质起伏变化数据。通过数字孪生技术和采煤机惯性导航系统,得到当前采运设备的实时运行姿态,基于前方三维地质数据对采煤机的上下滚筒高度进行截割规划,同时思考采煤机采高、割顶割底限制、刮板输送机各刮板之间限位、推移挖底量等因素,实现工作面煤层自适应开采截割路径规划。工作面煤层自适应开采截割路径规划方案如图1所示。

图1 工作面煤层自适应开采截割路径规划方案
02、基于数字孪生的透明工作面
基于数字孪生的透明工作面模型,主要通过巷道测量与写实、瓦斯抽放钻孔测井技术、孔中雷达探测技术、三维地震资料再解释、槽波地震波勘探等获取构造、起伏等地质信息,基于地质数据得到煤层顶底板高程值离散数据点,利用线性插值法对三维煤层顶底板高程值进行拟合,得出工作面各区域煤厚信息,利用多源数据融合技术生成高精度数字化底板模型。满足实时显示采煤前方必定区域的地质煤厚变化、空间起伏变化等,基于数字孪生的透明工作面界面如图2所示。

图2 基于数字孪生的透明工作面界面
03、采运设备实时姿态检测
通过在采煤机上安装惯性导航测量单元,实现井下采煤机姿态实时准确监测。惯性导航为系统核心,由加速度计和陀螺仪组成。加速度计测量采煤机各方向加速度,陀螺仪测量采煤机的角速度。姿态解算系统由IMU等惯性传感器组成,根据姿态和位置解算公式实时解算采煤机的姿态信息和定位信息,包括俯仰角、横滚角、航向角和采煤机所在位置,惯性测量单元安装示意如图3所示。

图3 惯性测量单元安装示意
采煤机运行过程中,采煤机支撑滑靴和行走轮与刮板输送机接触运行,刮板输送机形态由采煤机支撑滑靴和行走轮的运行轨迹直接反映。在采煤机运行轨迹的基础上,结合采煤机支撑滑靴及行走轮与刮板输送机之间的配套关系,建立采煤机与刮板输送机角度间关系耦合模型,实现对刮板输送机角度反演解算,并在此基础上计算刮板输送机的相对高度,为采煤机滚筒自主调节和动态调直提供数据保障,刮板输送机位姿轨迹界面如图4所示。

图4 刮板输送机路径轨迹界面
04、自适应截割规划控制
透明工作面与刮板输送机轨迹相结合,实现采煤机截割滚筒自适应调高和行走轨迹动态调直。在垂直面上,基于刮板输送机位姿调节滚筒高度,保障采煤机正常运行状态;在水平面上,通过实时采集刮板输送机水平面形态,为液压支架推移机构的推移距离提供依据,保证综采工作面的截割轨迹直线度,截割规划控制界面如图5所示。

图5 截割规划控制界面
(1)截割滚筒自适应调高
刮板输送机与工作面底板耦合,两者形态类似,采煤机在刮板输送机上直接运动,刮板输送机变化形态直接影响采煤机姿态,进而影响采煤机滚筒截割路线。因此,基于反演解算的刮板输送机在竖直面形态对采煤机后滚筒进行截割规划,通过控制后滚筒截割高度,实现对刮板输送机在竖直面的形态控制。
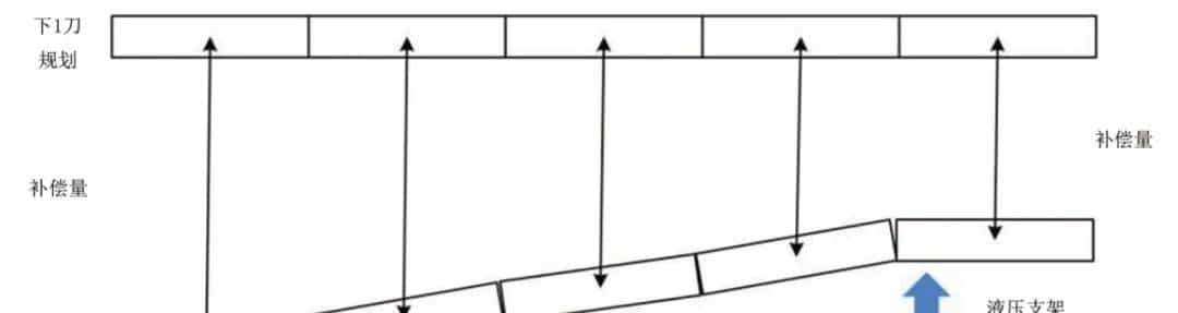
结合透明工作面模型中前方地质信息,控制刮板输送机垂直面姿态。利用透明工作面得到前方地质的煤层倾角,得到下1刀采煤机后滚筒截割调整量,提供给控制器作为下次截割规划滚筒调高控制参数。截割滚筒调高示意如图6所示(图中:H为采煤机机身高度,α为刮板输送机的俯仰角,I为机摇臂长度,ε为摇臂与水平面的夹角,R为采煤机滚筒半径,hZ为解算得到采煤机后滚筒的截割深度)。

图6 截割滚筒调高示意
由于工作面在俯斜开采或仰斜开采过程中底板需不断修正挖底、抬底。采煤机上下滚筒截割高度在以煤层上下边界为限的同时,需满足工作面上下坡程度及支架挖底、抬底极限。将采煤机上下滚筒截割线与煤层上下分界线偏离最小为优化目标,建立以采高、滚筒高度、挖底、抬底量限制等为约束条件的工作面开采截割路径优化模型。
(2)行走轨迹自动调直控制
刮板输送机因中部槽通过哑铃销连接弯曲度灵活,在液压支架推移机构的推动下,刮板输送机会产生弯曲,如长时间推移不到位,影响刮板输送机与煤壁的平行性,不利于采煤机正常行走和截割工作。为提高刮板输送机水平面直线度,基于位姿反演模型得到刮板输送机在水平面的弯曲形态。根据刮板输送机弯曲段的形成过程,计算出每节中部槽的推移距离,为液压支架推移机构的推移距离提供依据,保障刮板输送机水平面的直线度,行走轨迹自动调直示意如图7所示。

图7 行走轨迹自动调直示意
05、应用案例
大海则煤矿基于数字孪生的煤层自适应开采截割路径规划系统界面如图8所示。基于数字孪生的煤层自适应开采截割路径规划系统在大海则煤矿20202工作面进行应用验证,通过数字孪生技术生成数字化底板三维模型,在此基础上进行自适应截割规划控制,满足工作面截割精度,实现了工作面智能、少人、安全的常态化生产。

图8 大海则煤矿基于数字孪生的煤层自适应开采截割路径规划系统界面
06、结 语
针对工作面煤层信息特征不全和综采工作面采煤机截割路径规划精度低等问题,提出了基于数字孪生的煤层自适应开采截割路径规划系统。构建了透明工作面模型,实时监测采运设备姿态,实现了精准化煤层截割导航地图、采煤机截割滚筒自适应调高和行走轨迹动态调直等关键技术。在大海则煤矿工作面现场应用结果表明,对整个工作面构建三维数字透明化模型的同时,满足采煤机自动化截割规划精度需求。
文章来源:《智能矿山》2025年第5期“数字孪生技术研发及应用专题”栏目
第一作者:李自雄,高级工程师,现任中煤陕西榆林能源化工有限公司总经理,主要从事煤矿智能化管理工作。E-mail:lizixiong@chinacoal.com
作者单位:中煤陕西榆林能源化工有限公司;西安华创马科智能控制系统有限公司
引用格式:李自雄,李沅泽,乔鹏举,丁猛. 基于数字孪生的煤层自适应开采截割路径规划系统研发与应用[J]. 智能矿山,2025,6(4):23-27.
END
编辑丨李莎
审核丨赵瑞





