《建筑施工扣件式钢管脚手架安全技术规范》JGJ130-2011条文说明要求:悬挑外脚手架钢梁钢支撑点,不得设在外伸阳合或挑板位置,见规范JGJ130-2011第6.10.2~6.10.5 条关于悬挑外脚手架条文说明:“悬挑钢梁支承点应设置在结构梁上,不得设置在外伸阳台上或悬挑板上,否则应采取加固措施。”当悬挑外脚手架钢梁钢支撑点设置在外伸阳台上或悬挑板上,应采取什么样的加固措施呢?规范JGJ130-2011没有具体说明,对外伸阳台上或悬挑板,加固措施有两种,下面阐述如下:
一、悬挑外脚手架的钢梁前端支撑点往内移至框架梁
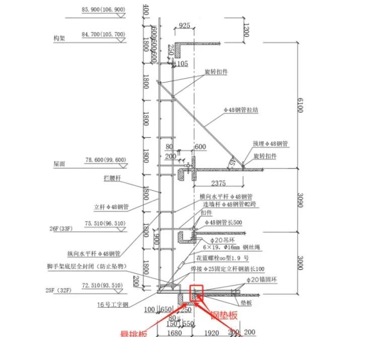
如下图1所示,悬挑外脚手架钢梁设置在外伸阳台上,在阳台内侧的框架
梁上设置10mm厚的钢垫板,悬挑外脚手架的荷载作用在框架梁上,这样悬挑外脚手架的钢梁前端支撑点往内移至框架梁,避免了阳台边梁受力。此时钢梁悬挑长度增大,锚固长度也相应增大,常用的3m长的钢梁此时不能采用,需采用4m、4.5m或6m长的钢梁。下图2是所示悬挑外脚手架钢梁设置在悬挑板上的构造图:在悬挑板内侧的框架梁上设置10mm厚的钢垫板,避免了悬挑板受力。


二、阳台下部2层和钢梁所在楼层的上一层设置钢管回顶
对于钢梁平铺在楼层的悬挑外脚手架, 阳台所在楼层的下面2层和钢梁所在楼层的上一层加设支撑钢管回顶,总共3层回顶,如下图3所示。

对于侧置钢筋拉杆式悬挑外脚手架(俗称花篮式悬挑外脚手架), 阳台所在楼层的下面1层和钢梁所在楼层的上一层加设支撑钢管回顶,总共2层回顶,如下图4所示。

三、总结
悬挑外脚手架钢梁钢支撑点设置在外伸阳台上或悬挑板上时,加固措施有两种:
1、钢梁前端支撑点往内移至框架梁(框架梁上设置10mm厚的钢垫板)。
2、阳台下部1至2层和钢梁所在楼层的上一层设置钢管回顶。



















- 最新
- 最热
只看作者